Ben jij op zoek naar een unieke en royale gezinswoning in het gezellige Hoogland?! Dan is deze half-vrijstaande woning op een prachtige locatie écht iets voor jou!
Op een rustige locatie, aan een autoluwe straat met slechts bestemmingsverkeer in de Hooglandse wijk “De Biezen”, ligt deze ruime gezinswoning. De woning beschikt over maar liefst 154 m2 woonoppervlak en is gelegen op een riant perceel van 430 m2, volop ruimte dus! Er is een royale en lichte leefruimte aanwezig op de begane grond, vier slaapkamers, een werkkamer op de verdieping en een praktische bergzolder. De prachtige tuin aan de achterzijde is gelegen op het westen waardoor je hier tot in de laatste uurtjes kunt genieten van de zon!
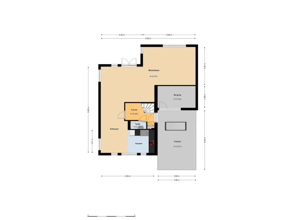
De indeling is als volgt:
Begane grond: entree/hal aan de zijkant van de woning met meterkast, toiletruimte, trapopgang naar de verdieping en toegang tot de leefruimte. Aan de voorzijde bevindt zich open keuken, in lichte kleurstelling en v.v. keramischekookplaat, combi-oven, afzuigkap, vaatwasser, koelkast en spoelbak. Aansluitend bereik je de eetkamer met open verbinding tot de royale woonkamer aan de achterzijde en met sfeervolle openslaande deuren naar de achtertuin. De grote raampartijen zorgen hier voor voldoende daglicht!
Verdieping: overloop met wasruimte v.v. aansluiting voor wasmachine-/droger en C.V.-installatie, separate toiletruimte, nette badkamer v.v. ligbad, douchecabine, wastafelmeubel en handdoekradiator. Aan de achterzijde van de woning bevinden zich drie in grootte variërende slaapkamers, waarvan één v.v. vaste kastenwand en één met vlizotrap naar de bergzolder. Aan de zijkant bevindt zich de werkkamer, eveneens met vaste kastenwand en aan de voorzijde de 4e slaapkamer. 
Tuin, berging en carport: de royale en brede achtertuin is gesitueerd op het westen. Er zijn meerdere terrassen aanwezig waardoor er op zomerse dagen altijd wel een prettige plek zowel in de zon als in de schaduw te vinden is. De borders met bloemen en beplanting bieden een fijne sfeer en het gazon zorgt voor het nodige groen. De tuin is onderhoudsvriendelijk aangelegd. De carport en berging aan de voorzijde van de woning biedt ruimte voor het stallen van fietsen en andere spullen. Daarnaast is er voldoen parkeergelegenheid op eigen terrein.
Het “Guddepad” bevindt zich aan de rand van het gezellige Hoogland. Het betreft een rustige, groene wijk op loopafstand van winkelcentrum “Kraailandhof” met een supermarkt voor de dagelijkse boodschappen, drogist, slijterij, slager, dierenspeciaalzaak en de wekelijkse markt. In de omgeving bevinden zich diverse sportfaciliteiten, natuurgebied Park Schothorst, het Schothorsterbos en diverse horecagelegenheden. De binnenstad van Amersfoort bereik je met 20 minuten fietsen en naastgelegen natuurgebied Coelhorst biedt prachtige wandel- en fietsroutes voor de nodige ontspanning. De uitvalswegen A1 en A28 en het openbaar vervoer zijn eveneens goed bereikbaar.
Bijzonderheden:
- unieke, royale half-vrijstaande woning
- energielabel: B
- bouwjaar: 1996
- woonoppervlak: 154 m2
- perceeloppervlak: 430 m2
- deze woning is ruimer dan vergelijkbare woningen in de buurt, 
  doordat de woning een meter breder is 
- royale leefruimte op de begane grond
- vier slaapkamers en een werkkamer 
- prachtige tuin op het westen
- bergzolder aanwezig
- volledig geïsoleerd
- groene en rustige buurt met slechts bestemmingsverkeer
- op loopafstand van diverse voorzieningen
- aan de rand van het dorp Hoogland
Nieuwsgierig naar dit fijne huis? Kom dan snel kijken en maak een afspraak via ons kantoor. Wij zijn bereikbaar op 033-3310031. Rivka of Sarah laat je deze woning graag zien!
                        
                         
                                    