Ben jij of ken jij iemand met twee rechterhanden en grijp jij de kans om deze unieke woning geheel naar eigen smaak en wens aan te passen aan de hedendaagse woonwensen?! Dan is deze twee-onder-één-kapwoning op een uniek perceel van maar liefst 509 m2 in het gezellige Hooglanderveen écht iets voor jou!
In het hart van het geliefde Hooglanderveen, aan een rustige en groene straat, vind je deze charmante en veelzijdige twee-onder-één-kapwoning uit 1968. Een unieke kans, want dit huis is sinds de bouw nog nooit van eigenaar gewisseld!  Met een woonoppervlakte van 101 m² en een royaal perceel van maar liefst 509 m² biedt deze woning alle ruimte om jouw woonwensen waar te maken en deze woning naar eigen smaak en wens uit te breiden en aan te passen. De fraai aangelegde voortuin geeft meteen een verzorgde indruk, terwijl de goed onderhouden achtertuin een fijne plek is om te ontspannen. Heb je groene vingers? Dan is er zelfs ruimte om achterin de tuin een eigen moestuin aan te leggen. Parkeren is geen probleem: je hebt de mogelijkheid om meerdere auto's op eigen terrein te parkeren. Binnen tref je een solide basis met karakter. De woning mag hier en daar wat gemoderniseerd worden – perfect voor wie zijn eigen stijl wil toevoegen! Of je nu op zoek bent naar een fijn familiehuis of een project om helemaal eigen te maken: dit is zo’n woning waar je kansen ziet en plannen van krijgt. 
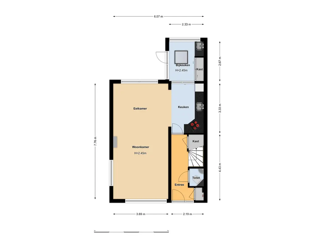
De indeling is als volgt:
Begane grond: entree/ruime hal met meterkast, toiletruimte, trapopgang naar 1e verdieping en praktische trapkast. Vanuit de hal bereik je de keuken en vanuit hier bereik je via de eetkamer aan de achterzijde, de lichte woonkamer aan de voorzijde. Dankzij de grote raampartijen zijn zowel de woon- als eetkamer heerlijk licht en aangenaam ruim en zou nog verder uitgebreid kunnen worden doormiddel van een aanbouw aan de achterzijde. Vanuit de keuken is middels een schuifdeur de bijkeuken te bereiken waar zich de aansluiting voor wasmachine en droger bevinden, maar ook nog wastafel en een praktische bergkast.
1e verdieping: overloop met trapopgang naar 2e verdieping, twee in grootte variërende slaapkamers aan de achterzijde v.v. vaste kast, een derde, royale slaapkamer aan de voorzijde eveneens met een vaste kast, de badkamer is uitgerust van een ligbad, een aparte douche, een toilet en een hangende wastafel. 
2e verdieping: verrassende hoeveelheid ruimte! Dankzij het zadeldak is er volop stahoogte, wat deze verdieping extra bruikbaar maakt. Momenteel is het een open zolderverdieping met tal van mogelijkheden. Je kunt hier met gemak één of zelfs twee extra slaapkamers realiseren doormiddel van het plaatsen van een dakkapel. Ook is er voldoende ruimte voor opbergruimte of bijvoorbeeld een wasruimte. 
Tuin en vrijstaande stenen garage: de achtertuin is een echte eyecatcher: ruim, fraai aangelegd en met volop mogelijkheden om het buitenleven optimaal te beleven. De tuin ligt op het oosten, waardoor je een groot deel van de dag kunt genieten van de zon, terwijl er op zomerse dagen eveneens fijne schaduwplekken zijn. Dankzij de diepte en breedte van het perceel is er altijd wel een comfortabel plekje te vinden. De tuin is keurig onderhouden, voorzien van groen, een vijver, borders en bestrating – ideaal voor zowel tuinliefhebbers als mensen die graag ontspannen zonder al te veel onderhoud. Via de tuin heb je bovendien direct toegang tot de garage, wat extra praktisch is voor het opbergen van tuingereedschap, fietsen of andere spullen. 
De ligging is zeer centraal, op loopafstand van de dorpssupermarkt en leuke speeltuin en op korte fietsafstand van winkelcentrum Vathorst met een zeer uitgebreid winkel aanbod voor de dagelijkse boodschappen en NS-station Vathorst van waaruit je snel en eenvoudig andere bestemmingen bereikt! In de directe omgeving van de woning bevinden zich meerdere basisscholen, sportfaciliteiten en horecagelegenheden. Het nabijgelegen Hoevelakense Bos biedt prachtige wandel- en fietsroutes. De uitvalswegen A1 en A28 zijn eveneens goed bereikbaar. De binnenstad van Amersfoort bereik je met 20 minuten fietsen en heeft de mooie erkenning 'European City of the Year 2023' !
Bijzonderheden:
- unieke twee-onder-één-kapwoning met garage
- woonoppervlak: 101 m2 
- perceeloppervlak: 509 m2 
- bouwjaar: 1968
- parkeergelegenheid op eigen terrein
- energielabel: F
- 10 zonnepanelen aanwezig
- compleet naar eigen smaak te moderniseren  
- 3 slaapkamers met mogelijkheid tot het creëren van extra slaapkamers
- royale en lichte leefruimte
- ideale ligging; groen en kindvriendelijk
- op loopafstand van buurtwinkels en basisscholen
- op fietsafstand van het winkelcentrum Vathorst en openbaar vervoer
We begrijpen dat je deze woning graag zou willen aanpassen naar jouw eigen stijl en de woonwensen van nu of uit zou willen breiden. Zie jij de mogelijkheden al voor je? Wacht dan niet te lang en plan een bezichtiging in – bel ons gerust op 033 - 331 00 31. We laten je dit fijne huis met plezier zien!
Aanvaarding in overleg.
                        
                         
                                     
                                     
                                     
                                     
                                     
                                     
                                     
                                     
                                     
                                     
                                     
                                     
                                     
                                     
                                     
                                     
                                     
                                     
                                     
                                     
                                     
                                     
                                     
                                     
                                     
                                     
                                     
                                     
                                     
                                     
                                     
                                     
                                     
                                     
                                     
                                     
                                     
                                     
                                     
                                     
                                     
                                     
                                         
                                         
                                         
                                         
                                         
                                         
                                         
                                         
                                         
                                         
                                         
                                         
                                         
                                         
                                         
                                         
                                         
                                         
                                         
                                         
                                         
                                         
                                         
                                         
                                         
                                         
                                         
                                         
                                         
                                         
                                         
                                         
                                         
                                         
                                         
                                         
                                         
                                         
                                         
                                         
                                         
                                         
                                     
                                     
                                     
                                    